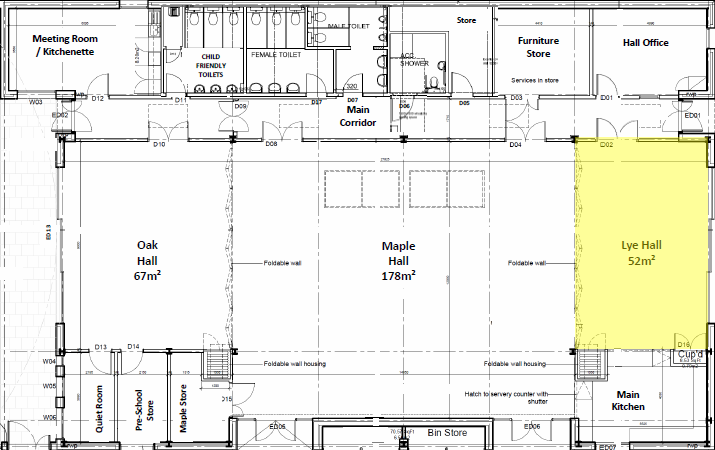
Dimensions: 9m x 5.7m
This very light and airy hall situated at the front of the building. It benefits from large glass sliding doors overlooking the beautiful area of common land of St John's Lye. It can be used alone or together with Maple and Oak Halls by use of foldable walls. Sprung wooden flooring throughout.
The Main Kitchen is available for hire with Lye Hall at an additional cost. There is a hatchway and servery counter from the kitchen into the hall. The kitchen is well equipped and includes use of sink, large fridge and freezer, dishwasher, mains urn, oven and hob and microwave with ample cups, plates and cutlery. The kitchen is shared with Maple Hall.
This hall is not suitable for inflatables or obstacle courses
|
Photo Marcus Peel
|

